Гильзы цилиндров – «мокрого» типа, изготавливаются из специального чугуна

Гильзы устанавливаются своими посадочными поясами в расточки блока цилиндров и сверху прижимаются через бурт и прокладку головками цилиндров

Выступание бурта гильзы над поверхностью блока цилиндров на двигателях:

  • ЯМЗ-238БЕ2, ЯМЗ-238ДЕ2 — 1,6+0.035/-0.065 мм.
  • ЯМЗ-238БЕ, ЯМЗ-238ДЕ — 0,1+0.065/-0.035 мм.

На двигатели ЯМЗ-238БЕ, ЯМЗ-238ДЕ могут устанавливаться гильзы со следующими конструктивными особенностями:

Гильза 236-1002021-А5

Поверхности гильзы фосфатированные.

Фосфатированный слой улучшает притирочные характеристики, увеличивает износостойкость поверхности, снижает вероятность образования натира.

Внешнее отличие фосфатированной гильзы от нефосфатированной ― значительно более темный (от темно-серого до черного) цвет наружной поверхности.

Верхний торец бурта гильзы выполнен выступающей частью к внутренней поверхности гильзы (под асбостальную прокладку газового стыка) с высотой бурта 12,1 мм.

В нижней части гильзы выполнены три канавки под антикавитационное и уплотнительные резиновые кольца.

Гильза 236-1002021-А

Конструктивные особенности аналогичны предыдущей, но только отсутствует фосфатированное покрытие поверхности гильзы.

На двигатели ЯМЗ-238БЕ2, ЯМЗ-238ДЕ2 устанавливается фосфатированная гильза 7511.1002021-01.

Верхний торец бурта выполнен выступающей частью к наружной поверхности (под металлическую прокладку газового стыка) с высотой бурта 9,6 мм.

На верхней посадочной поверхности выполнена канавка для установки резинового уплотнительного кольца.

В нижней части гильзы выполнены три канавки под антикавитационное и уплотнительные резиновые кольца.

1 - уплотнительные кольца; 2 - гильза; 3 - уплотнительное кольцо

По величине внутреннего диаметра гильзы разделены на размерные группы:

Маркировка - Наименьший внутренний диаметр, мм

  • - А - 130,00-130,02;
  • - Б - 130,02-130,04;
  • - Ж - 130,04-130,06;

 Размерная группа маркируется на нерабочей поверхности бурта гильзы.

Поршень: 1 - поршень; 2 - стопорные кольца; 3 - поршневой палец; 4 - расширитель; 5 - маслосъемное кольцо; 6 - второе компрессионное кольцо; 7 - верхнее компрессионное кольцо

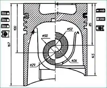
Поршни (рис. 2) отлиты из эвтектического алюминиево-кремнистого сплава.

Охлаждение поршня маслом производится из неподвижной форсунки.

На юбке поршня имеется выемка для форсунки охлаждения. В днище поршня выполнена камера сгорания.

1 - шатунные вкладыши; 2 - стопорное кольцо; 3 - палец поршневой; 4 - болт крепления шатуна; 5 - поршень; 6 - кольца компрессионные; 7 - маслосъемное кольцо

На двигатели ЯМЗ-238БЕ2, ЯМЗ-238ДЕ2 устанавливаются поршни 7511.1004015-10 с 3-я канавками под поршневые кольца (две под компрессионные и одна под маслосъемное).

Канавка под верхнее компрессионное кольцо выполнена во вставке из жаропрочного чугуна (типа "нирезист").

Камера сгорания смещена на 5 мм, боковая поверхность с поднутрением, имеет вытеснитель.

На днище имеются выточки под клапаны газораспределения.

Высота от днища до оси пальца составляет 85 мм. Диаметр под поршневой палец 52 мм.

На двигатели ЯМЗ-238ДЕ2 (индивидуальные головки) устанавливаются поршни 7511.1004015-01 с центральной камерой сгорания и измененными выточками под клапана.

Остальное как на предыдущем поршне.

На двигатели ЯМЗ-238БЕ, ЯМЗ-238ДЕ могут устанавливаться поршни со следующими конструктивными особенностями:

1. Поршень 238НБ-1004015-Б4 с 4-мя канавками под поршневые кольца (три под компрессионные и одна под маслосъемное).

Канавка под верхнее компрессионное кольцо выполнена во вставке из жаропрочного чугуна (типа "нирезист") с целью повышения износостойкости.

Камера сгорания смещена на 5 мм, боковая поверхность с поднутрением, имеет вытеснитель.

Высота от днища до оси пальца составляет 100 мм.

Диаметр под поршневой палец 50 мм.

2. Поршень 238НБ-1004015 отлит из заэвтектического алюминиево-кремнистого сплава и аналогичен предыдущему, но на нем отсутствует "нирезистовая" вставка под верхнее компрессионное кольцо.

Камера сгорания смещена на 5 мм, без вытеснителя.

Данный поршень поставляется с гильзой в запасные части в комплектах 238НБ-1004008 и 238НБ-1004005-А3.

По величине диаметра юбки поршни разделены на размерные группы:

Маркировка - Диаметр юбки поршня, мм

238НБ-1004015-Б4, 238НБ-1004015

  • - АНБ - 129,80-129,82;
  • - БНБ - 129,82-129,84;
  • - ЖНБ - 129,84-129,86;

7511.1004015-01, 7511.1004015-10

  • - АНБ - 129,85-129,87;
  • - БНБ - 129,87-129,89;
  • - ЖНБ - 129,89-129,91;

 Размерная группа маркируется на днище поршня.

1 - маслосъемное поршневое кольцо; 2 - компрессионное кольцо; 3 - верхнее компрессионное кольцо; 4 - поршень; 5 - стопорное кольцо; 6 - поршневой палец; 7 - втулка верхней головки шатуна; 8 - болт крепления крышки шатуна; 9 - шатун; 10 - гайка; 11 - крышка шатуна; 12 - вкладыши шатуна

Поршневые кольца изготовлены из специального чугуна, разрезные, хромированные, устанавливаются в канавки поршня.

В зависимости от выполняемой задачи в рабочем процессе кольца имеют различную конструкцию и устанавливаются на поршень комплектно в определенном порядке.

На поршни могут быть установлены следующие комплекты колец:

Трехколечный комплект 7511.1004002, где:

  • − первое компрессионное имеет в сечении двухстороннюю трапецию со смещенной вниз бочкообразной хромированной рабочей поверхностью. Номер кольца 7511.1004030
  • − второе компрессионное кольцо прямоугольного сечения, минутное с покрытием хромом. Номер кольца 7511.1004032
  • − маслосъемное кольцо коробчатого сечения с хромированными рабочими кромками и витым пружинным расширителем. Номер кольца 7511.1004034

Четырехколечный комплект для заводской комплектации, который входит в комплект 238Б-1004005, где:

  • − первое компрессионное имеет в сечении одностороннюю трапецию.

Рабочая поверхность хромирована плотным хромом. Номер кольца 236-1004030-Б.

  • − второе и третье компрессионные кольца имеют в сечении одностороннюю трапецию, минутные. Номер кольца 236-1004032-А3
  • − маслосъемные кольца коробчатого сечения с хромированными рабочими кромками и витым пружинным расширителем. Номер кольца 236-1004034

Четырехколечный комплект 236-1004002-А4, где:

  • − первое компрессионное имеет в сечении одностороннюю трапецию.

Рабочая поверхность хромирована пористым хромом. Номер кольца 236-1004030-А2

  • − второе и третье компрессионные кольца имеют в сечении одностороннюю трапецию, минутные. Номер кольца 236-1004032-А3
  • − маслосъемные кольца коробчатого сечения с хромированными рабочими кромками и витым пружинным расширителем. Номер кольца 236-1004034

При установке поршневых колец обращать особое внимание на правильность их расположения. Слово "Верх" должно быть обращено к днищу поршня.

Для обеспечения точной посадки при сборке поршень и гильза должны подбираться из одних размерных групп.

В разные цилиндры двигателя допускается установка комплектов гильза-поршень разных размерных групп.

Маркировка гильзы - Маркировка поршня

  • А - АНБ;
  • Б - БНБ;
  • Ж - ЖНБ

Поршневой палец двигателей ЯМЗ-238БЕ, ЯМЗ-238ДЕ – пустотелый, плавающего типа с цементированной наружной поверхностью.

Палец устанавливается в отверстие в поршне.

Осевое перемещение пальца ограничивается стопорными кольцами, устанавливаемыми в специальные канавки в бобышках поршня.

Поршень, поршневые кольца, палец: слева - поршень 238НБ-1004015-Б4 кольца и палец к нему; справа поршень 7511.10040115-10 кольца и палец к нему

Поршневой палец двигателей ЯМЗ-238БЕ2, ЯМЗ-238ДЕ2 – азотированный, имеет увеличенный наружный диаметр (рис. 5).

Варианты комплектования гильза - поршень - кольца поршневые

По конструктивным особенностям:

ЯМЗ-238БЕ2, ЯМЗ-238ДЕ2 (общие головки цилиндров)

  • Гильза - под металлическую прокладку 7511.1002021-01
  • Комплект колец - 3-х колечный комплект 7511.1004002
  • Поршень - Со смещенной камерой сгорания 7511.1004015-10

ЯМЗ-238ДЕ2 (индивидуальные головки цилиндров)

  • Гильза - под металлическую прокладку 7511.1002021-01
  • Комплект колец - 3-х колечный комплект 7511.1004002
  • Поршень - С центральной камерой сгорания 7511.1004015-01

ЯМЗ-238БЕ, ЯМЗ-238ДЕ (общие головки цилиндров)

Основной вариант:

  • Гильза - фосфатированная 236-1002021-А5;
  • Комплект колец - 4-х колечный с плотным хромом (заводская комплектация);
  • Поршень - С 4-мя канавками и с нирезистовой вставкой 238НБ-1004015-Б4

Допустимые варианты (при ремонте двигателя):

  • Гильза - Не фосфатированная 236-1002021-А;
  • Комплект колец - 4-х колечный с пористым хромом 236-1004002-А4;
  • Поршень - С 4-мя канавками и снирезистовой вставкой 238НБ-1004015-Б4 или без вставки 238НБ-1004015

В эксплуатации при ремонте работавших двигателей допустима установка новых поршневых колец в старую гильзу цилиндра, находящуюся в исправном состоянии, при этом использовать только комплект поршневых колец с пористым хромом 236-1004002-А4. Другие варианты не допускаются

Замена поршневых колец

Для замены поршневых колец предварительно демонтировать поршень с шатуном при снятой головке цилиндров и поддоне.

Двигатели оборудованы масляным охлаждением поршней.

При демонтаже поршневой группы на указанных двигателях предварительно снять форсунки охлаждения поршней во избежание их поломок.

Для более легкого извлечения поршня очистить нагар с верхнего пояса гильзы.

Отвернуть болты крепления крышки шатуна, снять крышку и извлечь через цилиндр поршень в сборе с шатуном.

Для отсоединения шатуна от поршня вынуть стопорные кольца поршневого пальца, нагреть поршень в масляной ванне до 80ºС и извлечь поршневой палец.

Щипцы для снятия и надевания поршневых колец: 1 - поршневое кольцо; 2 - губки щипцов; 3 - рукоятка

Для снятия поршневых колец надеть щипцы (рис. 6) на кольцо, ввести губки 2 щипцов в замок кольца и, сжав до упора рукоятки 3 щипцов, осторожно вывести кольцо из канавки и снять его с поршня (рис. 7).

Снятие и надевание поршневых колец на поршень

Установку поршневых колец производить в обратном порядке.

Осторожно очистить поршень от нагара, предохраняя его от повреждений (особенно торцовые поверхности канавок под поршневые кольца).

Перед сборкой все детали тщательно промыть, а масляные каналы продуть сжатым воздухом.

Сборку поршня с пальцем производить легким нажатием руки, при этом необходимо обильно смазать моторным маслом отверстие в поршне и палец.

Не допускается запрессовка пальца в поршень.

Оправка для установки поршня в гильзу цилиндра: 1 - гильза цилиндра; 2 - блок цилиндров; 3 - обжимное приспособление; 4 - поршневое кольцо; 5 - поршень

Для того, чтобы установить в гильзу цилиндра поршень в сборе с поршневыми кольцами и шатуном, предварительно сжать кольца, утопив их в канавки поршня.

Для сжатия колец применять оправку (рис. 8) с конической внутренней поверхностью и буртиком, позволяющим правильно сцентрировать оправку на гильзе цилиндра.

Установив поршень в оправку, осадить его в гильзу цилиндра.

При сборке поршня с шатуном и установке их на двигатель выполнять следующие требования:

  • 1. Поршень и гильза должны быть одинаковых размерных групп.
  • 2. Компрессионные кольца устанавливать клеймом «верх» к днищу поршня.
  • 3. Замки соседних поршневых колец развести в противоположные стороны в плоскость поршневого пальца.
  • 4. Установить поршень так, чтобы смещенная камера сгорания в поршне была направлена внутрь двигателя, в сторону топливного насоса.

На двигателях с индивидуальными головками цилиндров применяются поршни с центральной камерой сгорания.

Устанавливать поршень в гильзу так, чтобы стрелка на поршне была направлена в развал двигателя, в сторону топливного насоса. При этом выточки на днище поршня под клапаны будут смещены относительно центра цилиндра в сторону выхлопных коллекторов.

  • 5. Клейма спаренности на шатуне и крышке должны быть одинаковыми.
  • 6. Грязь, заусеницы и забоины на шлицах шатуна и крышки не допускаются.
  • 7. Резьбу и опорные торцы головок болтов крепления крышек шатунов смазать моторным маслом и затянуть в два приема, начиная с длинного болта, сначала моментом 100 Нм (10 кгсм), окончательно моментом 200 – 220 Нм (20 – 22 кгсм).